

На складе
5 590 руб.
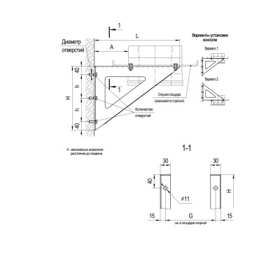
Технические характеристики
| Консоль (fk01) | ||||||||
|---|---|---|---|---|---|---|---|---|
| Номер | L | H | h | Кол-во отверстий | Диаметр отверстий | Масса | Несущая способность, кг | |
| К1 | 280 | 200 | 120 | 2 | 11 | 1.28 | 150 | |
| К2 | 330 | 250 | 170 | 2 | 11 | 1.61 | 150 | |
| К3 | 400 | 300 | 220 | 2 | 11 | 2.23 | 150 | |
| К4 | 500 | 370 | 289 | 2 | 11 | 2.87 | 200 | |
| К5 | 600 | 440 | 180 | 3 | 11 | 3.52 | 200 | |
| К6 | 700 | 510 | 215 | 3 | 11 | 4.64 | 200 | |
| К7 | 950 | 680 | 300 | 3 | 11 | 8.07 | 200 | |
| К8 | 1300 | 980 | 450 | 3 | 11 | 14.01 | 200 | |
| Максимально возможное расстояние до трубы (площадка одностенная) | ||||||||
| Труба | К1 (280) | К2 (330) | К3 (400) | К4 (500) | К5 (600) | К6 (700) | К7 (950) | К8 (1300) |
| 80 | 205 | 255 | 325 | 425 | 525 | 625 | 875 | 1225 |
| 100 | 195 | 245 | 315 | 415 | 515 | 615 | 865 | 1215 |
| 110 | 190 | 240 | 310 | 410 | 510 | 610 | 860 | 1210 |
| 115 | 190 | 240 | 310 | 410 | 510 | 610 | 860 | 1210 |
| 120 | 185 | 235 | 305 | 405 | 505 | 605 | 855 | 1205 |
| 125 | 185 | 235 | 305 | 405 | 505 | 605 | 855 | 1205 |
| 130 | 180 | 230 | 300 | 400 | 500 | 600 | 850 | 1200 |
| 135 | 180 | 230 | 300 | 400 | 500 | 600 | 850 | 1200 |
| 140 | 175 | 225 | 295 | 395 | 495 | 595 | 855 | 1195 |
| 150 | 170 | 220 | 290 | 390 | 490 | 590 | 840 | 1190 |
| 160 | 165 | 215 | 285 | 385 | 485 | 585 | 835 | 1185 |
| 180 | 155 | 205 | 275 | 375 | 475 | 575 | 825 | 1175 |
| 200 | 145 | 195 | 265 | 365 | 465 | 565 | 815 | 1165 |
| 220 | 135 | 185 | 255 | 355 | 455 | 555 | 805 | 1155 |
| 250 | 120 | 170 | 240 | 340 | 440 | 540 | 790 | 1140 |
| 280 | 105 | 155 | 225 | 325 | 425 | 525 | 775 | 1125 |
| 300 | 90 | 140 | 210 | 310 | 410 | 510 | 760 | 1110 |
| Максимально возможное расстояние до сэндвича (площадка двустенная) | ||||||||
| Сэндвич | К1 (280) | К2 (330) | К3 (400) | К4 (500) | К5 (600) | К6 (700) | К7 (950) | К8 (1300) |
| 80х160 | 155 | 205 | 275 | 375 | 475 | 575 | 825 | 1175 |
| 100х200 | 135 | 185 | 255 | 355 | 455 | 555 | 805 | 1155 |
| 110х200 | 135 | 185 | 255 | 355 | 455 | 555 | 805 | 1155 |
| 115х200 | 135 | 185 | 255 | 355 | 455 | 555 | 805 | 1155 |
| 120х200 | 135 | 185 | 255 | 355 | 455 | 555 | 805 | 1155 |
| 130х200 | 135 | 185 | 255 | 355 | 455 | 555 | 805 | 1155 |
| 135х200 | 135 | 185 | 255 | 355 | 455 | 555 | 805 | 1155 |
| 140х210 | 130 | 180 | 250 | 350 | 450 | 550 | 800 | 1150 |
| 150х210 | 130 | 180 | 250 | 350 | 450 | 550 | 800 | 1150 |
| 150х250 | 110 | 160 | 230 | 330 | 430 | 530 | 780 | 1130 |
| 160х250 | 110 | 160 | 230 | 330 | 430 | 530 | 780 | 1130 |
| 180х280 | 95 | 145 | 215 | 315 | 415 | 515 | 765 | 1115 |
| 200х280 | 95 | 145 | 215 | 315 | 415 | 515 | 765 | 1115 |
| 220х300 | 85 | 135 | 205 | 305 | 405 | 505 | 755 | 1105 |
| 250х350 | 55 | 105 | 175 | 275 | 375 | 475 | 725 | 1075 |
| 300х400 | - | 80 | 150 | 250 | 350 | 450 | 700 | 1050 |
- Материал
- AISI 430
- Тип изделия
- Опора стеновая
Информация на сайте приведена по данным производителя. В целях совершенствования продукции производитель оставляет за собой право вносить изменения в конструкцию и технические характеристики оборудования без предварительного уведомления. Цены и наличие товара могут изменятся в течении дня. Информация на сайте имеет ознакомительный характер. Актуальность описания, цены и наличия товара уточняйте у менеджера нашего магазина.

На нашем сайте Вы можете приобрести товары в кредит с сервисом «Покупай со Сбербанком», для этого Вам необходимо:
- Выберите понравившейся товар и оформите заказ
- Свяжитесь с нашим менеджером любым удобным для Вас способом
- Сообщите менеджеру, что Вы хотите приобрести товар в кредит
- Менеджер направит Вам ссылку на оплату на Вашу электронную почту
- Пройдите по ссылке
- Когда откроется Сбербанк Онлайн, авторизуйтесь и заполните заявку
- Если кредит одобрен, подтвердите согласие с его условиями в Сбербанк Онлайн
- Согласуйте с менеджером комфортный способ и время доставки
- Наслаждайтесь покупкой
ссылка на условия кредитования http://pokupay.ru/credit_terms


