


На складе
45 900 руб.
Врезная кухонная мойка изготовлена в Германии из гранитного материала Cristalite®, состоящего на 80% из кварцевого песка — самого прочного компонента гранита. Материал Cristalite® разработан и запатентован немецкой компанией SCHOCK для производства моек и декоративных вставок для смесителей.
Материал чрезвычайно прочен, долговечен и легок в уходе. Устойчив к царапинам и безопасен для пищевых продуктов. При прикосновении поверхность изделия из материала Cristalite® передаёт приятную шероховатость гранитной крошки.
QUADRO 60 — одночашевая мойка универсального дизайна со сдержанными элегантными линиями, которая впишется в любой интерьер. Компактные размеры врезки позволяют устанавливать мойку в нестандартные столешницы и в островные кухни. Клапан-автомат позволяет открывать и закрывать сливное отверстие одним поворотом переключателя. Данная модель мойки укомплектована комплектом крепежа для классического врезного монтажа сверху столешницы. Учитывайте ширину пристенного плинтуса при установке мойки возле стены или пенала.
Цвет саббиа
Артикул 700522
Установка врезная
Форма прямоугольная
Количество чаш 1
Крыло нет
Расположение мойки по умолчанию
Тип монтажа классический врезной
Материал искусственный гранит
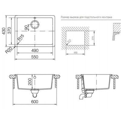
Размер мойки, см 55x43
Размер чаши, см 49x37
Размер выреза, мм 530x410 R10
Габариты транспортной упаковки, см 72х53х30
Вес, кг 10.62
Вес в транспортной упаковке, кг 16.9
Ширина монтажного отверстия, см 53
Ширина шкафа, см 60
Страна производитель Германия
Комплектация
Отводная арматура с клапаном-автоматом 3,5 дюйма и переливом, сифон с возможностью подключения посудомоечной или стиральной машины, набор крепежа для врезного монтажа.
Для установки мойки под столешницу закажите комплект крепежа для подстольного монтажа 6.3016-4A.
- Форма
- Цвет
- Ширина шкафа, см
- 60
- Тип установки
Информация на сайте приведена по данным производителя. В целях совершенствования продукции производитель оставляет за собой право вносить изменения в конструкцию и технические характеристики оборудования без предварительного уведомления. Цены и наличие товара могут изменятся в течении дня. Информация на сайте имеет ознакомительный характер. Актуальность описания, цены и наличия товара уточняйте у менеджера нашего магазина.

На нашем сайте Вы можете приобрести товары в кредит с сервисом «Покупай со Сбербанком», для этого Вам необходимо:
- Выберите понравившейся товар и оформите заказ
- Свяжитесь с нашим менеджером любым удобным для Вас способом
- Сообщите менеджеру, что Вы хотите приобрести товар в кредит
- Менеджер направит Вам ссылку на оплату на Вашу электронную почту
- Пройдите по ссылке
- Когда откроется Сбербанк Онлайн, авторизуйтесь и заполните заявку
- Если кредит одобрен, подтвердите согласие с его условиями в Сбербанк Онлайн
- Согласуйте с менеджером комфортный способ и время доставки
- Наслаждайтесь покупкой
ссылка на условия кредитования http://pokupay.ru/credit_terms



